
Volvo
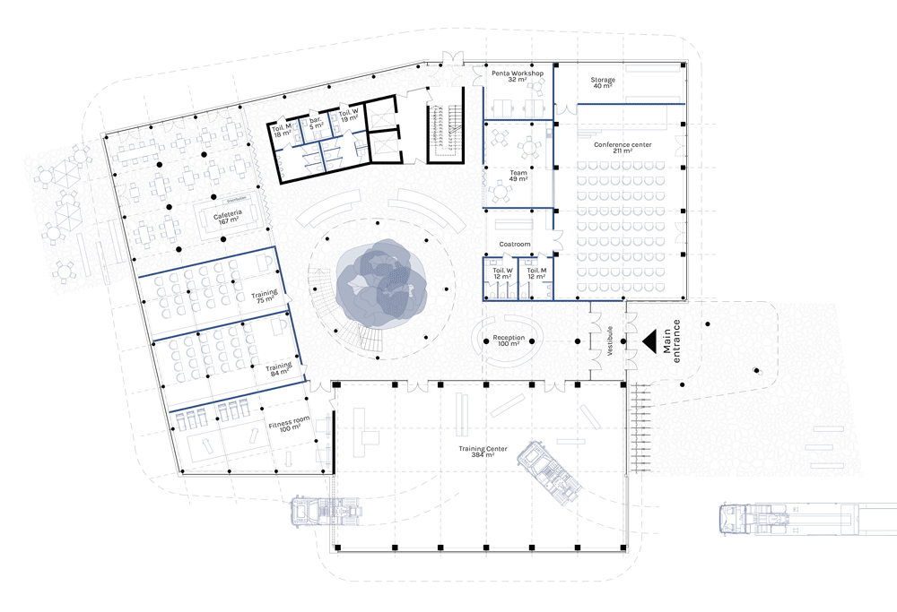
The considerations reflect a translation of the design principles of a car manufacturer into a timeless architectural language. Sustainable materials, identity-establishing features and a dynamic façade design characterise the image of the building at the interface between a motorway slip road and an industrial estate. Inside, trees symbolically occupy the lightcone atrium at the centre of the building and reinforce a natural indoor climate.


>The forest as a design element<
Volvo identifies with the core values of environmental protection. Following this approach, the green areas of the new headquarter are designed as a „forest.“ A robust ecosystem that responds to changing circumstances as a plant community, thus securing its existence: a climate-resistant system. The open spaces that are not allocated to traffic are formulated to serve the principle of the sponge-city-principle. The image is characterized by various tiny forests. A strong, self-sustaining and renewing appearance that requires little care. Small, densely planted forest patches consisting of a variety of fast-growing plants make up the tiny forests. The tiny forests have the following potentials: cooling during hot periods, uniform infiltration in the sense of urban sponge, noise protection and the increase of ecosystem performance, environmental protection as an identity-forming feature of Volvo Trucks.


